Siehe auch Neue Häuser in Kołobrzeg Reihenhäuser
tel. +48 509 474 471

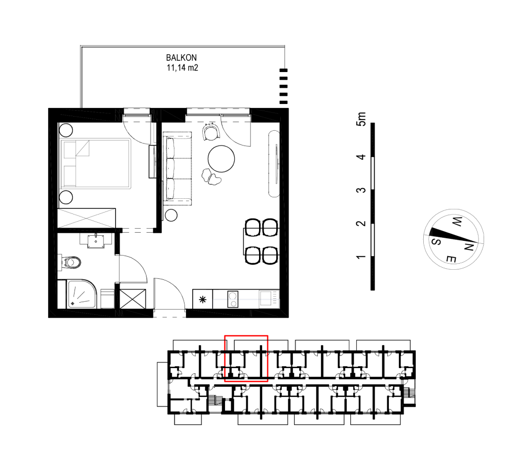
Firmengelände B204 - 2. Stock

Status: verkauft

Liste der Bereiche: 36.30 m2

Hauptraum + Kochnische: 22.94 m2
Schlafzimmer: 9.60 m2
Badezimmer: 3.76 m2
Zusätzlicher Bereich - Balkon: 11.14 m2
Laden Sie die PDF-Karte herunter
Fragen Sie nach Einzelheiten

Der Plan der Räumlichkeiten und der Lage im Gebäude

Sehen Sie, wie Sie die Mehrwertsteuer zurückerhalten.
Möglichkeit der Fertigstellung der Wohnung nach dem Standard des Bauträgers: 1.800 PLN brutto pro m2.
Möglichkeit zum Kauf eines Parkplatzes für 45.000 PLN brutto.

    Napisz do nas!

    Wir laden Sie ein, unser Verkaufsbüro zu kontaktieren.

    Investorendaten
    ul. Spacerowa 12/5, 78-132 Grzybowo

      Schreib uns!