Zobacz również Nowe domy w Kołobrzegu Zabudowa szeregowa
tel. + 48 793 100 105

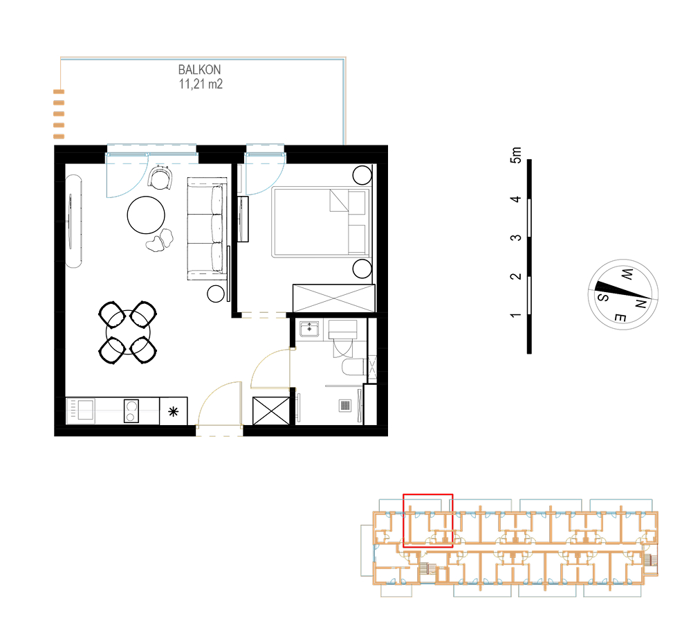
Lokal D203 - Piętro 2

Cena: 580 800 zł brutto (w tym 23% VAT)

Status: wolne

Zestawienie powierzchni: 36,30 m2

Apartament: 36,30 m2
Balkon: 10,65 m2
Pobierz kartę PDF
Zapytaj o szczegóły

Rzut lokalu oraz położenie w budynku

Zobacz jak odzyskać VAT.
Możliwość wykończenia mieszkania w standardzie dewelopera: 1800 zł brutto za m2.
Możliwość dokupienia miejsca postojowego w cenie 45 000 zł brutto.

    Napisz do nas!

    Serdecznie zapraszamy do kontaktu z naszym biurem sprzedaży.

    Dane inwestora
    ul. Spacerowa 12/5, 78-132 Grzybowo

      Napisz do nas!